Architectural project by:

Project promoted by:

logo-15
cepernich logo 2025
logo orizzontale

​CONTACT

7.jpeg

Commissioned by: 

info@housefactory.it

logo_payoff_bianco

+39 011 720 9050

Corso Fiume 11, 10131 (TO)

logo

PHOTOGALLERY

Project drawings

logoflat-01.jpeg

Before and after

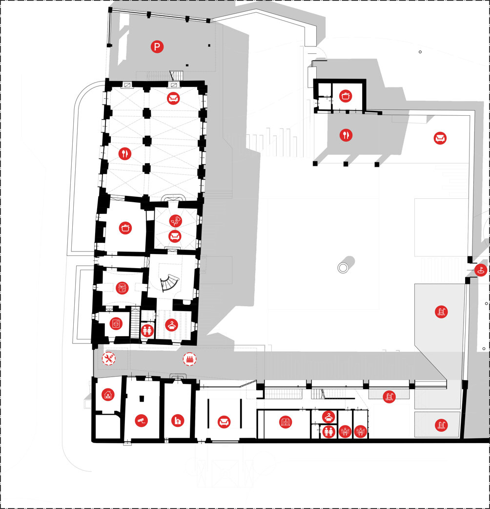
piano terra.jpeg

Ground floor

piano primo.jpeg

1st floor

piano secondo.jpeg

2st floor

esecutivo golf.jpeg

Golf course

esecutivo golf_diagramma.jpeg

Golf concept